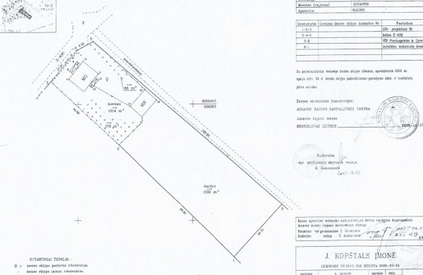
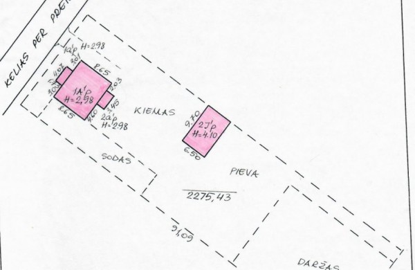
Jonavos r. sav. administracija skelbia nekilnojamojo turto pardavimo pakartotinį viešąjį aukcioną. Parduodamas turtas: gyvenamamasis namas (bendras plotas 74,72 kv.m) su ūkiniu pastatu ir jiems priskirtu 0,305 ha ploto žemės sklypu, esantys Žiedo g. 4, Preišiogalėlės k., Kulvos sen. Jonavos r. Pradinė pardavimo kaina 11 900 Eur. Už turto apžiūrą ir informacijos teikimą atsakinga Turto ir aplinkos apsaugos skyriaus vyr. specialistė Sandra Mačiulienė, tel. (8 349) 20040, el. p. sandra.maciuliene@jonava.lt.
Aukcionas vykdomas elektroniniu būdu VĮ Registrų centro administruojamoje specialiojoje svetainėje www.evarzytynes.lt. Elektroninio aukciono dalyviais registruojami asmenys, sumokėję aukcionų dalyvių įmokas ir internetu pateikę aukcionų sąlygose nurodytus dokumentus. Daugiau informacijos apie parduodamą turtą, išsamios viešojo aukciono sąlygos, turto apžiūros, aukciono dalyvių registracijos bei aukciono vykdymo laikotarpiai, sutarčių projektai skelbiami https://www.jonava.lt/savivaldybe/veiklos-sritys/parduodamas-turtas/739.
Nuoroda į elektroninį aukcioną
Preliminari statinio pirkimo-pardavimo sutartis















.jpg)
