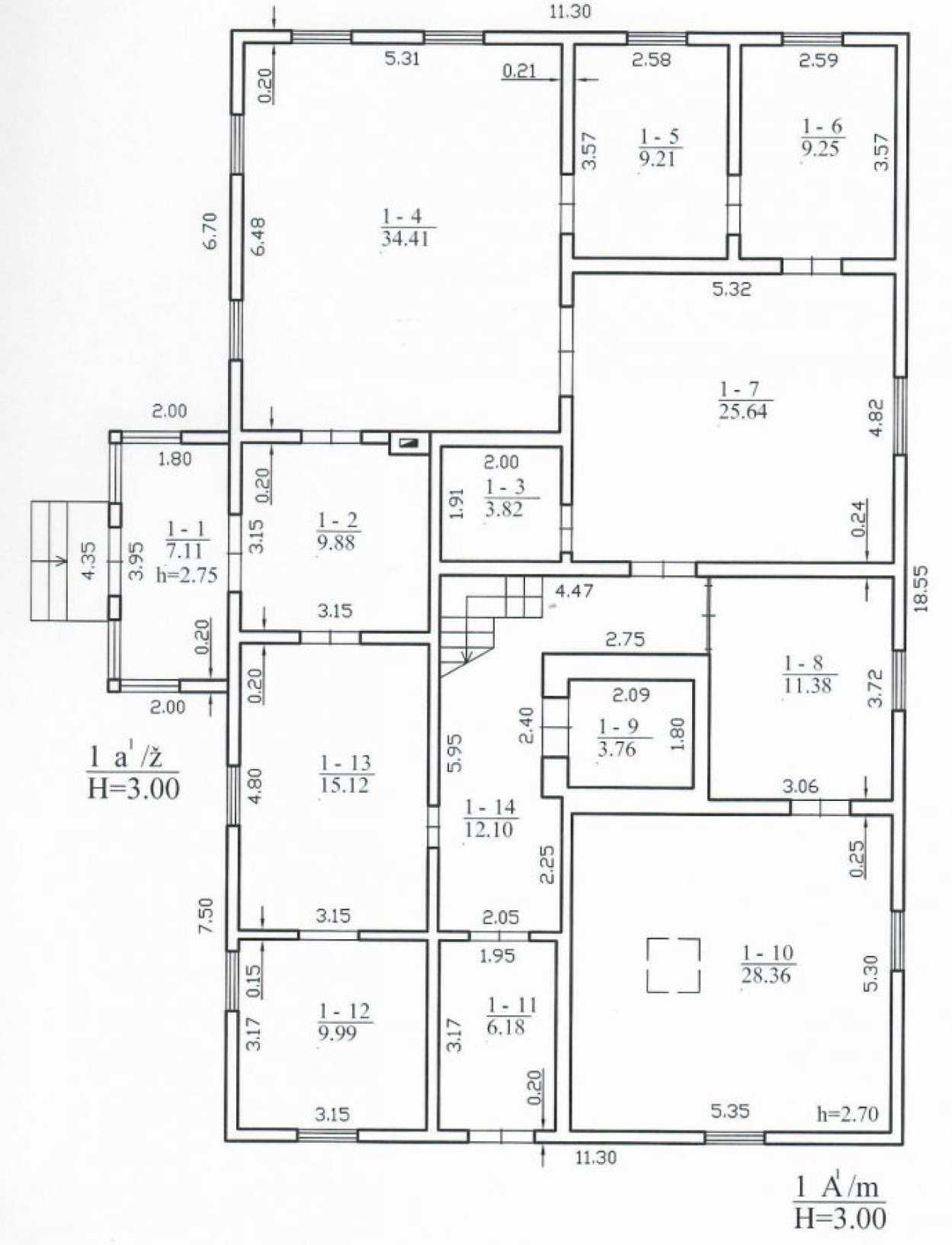
Jonavos r. sav. administracija skelbia nekilnojamojo turto ketvirtą pakartotinį pardavimo viešąjį aukcioną. Parduodamas turtas: gyvenamųjų namų su kiemo statiniais kompleksas, esantis Naujokų k. 1, 4, 5, Žeimių sen., Jonavos r., su jiems priskirtu 2,5996 ha ploto žemės sklypu, adresu Naujokų k. 1, Žeimių sen., Jonavos r.
Nekilnojamieji daiktai yra įtrauktai į kultūros vertybių registrą, todėl objekto pastatų tvarkybos darbų vykdymui būtina rengti tvarkybos darbų projektus pagal Kultūros paveldo departamento prie Kultūros ministerijos Kauno skyriaus išduotus paveldosaugos reikalavimus, gauti leidimą tvarkybos darbams (daugiau informacijos pateikiama priede).
Pradinė pardavimo kaina 37 610 Eur. Už turto apžiūrą atsakingas asmuo – Žeimių seniūnijos seniūnas Faustas Pilipavičius, tel. 8 (349) 780 48, mob. 8 (686) 16035, el.p. faustas.pilipavicius@jonava.lt.
Aukcionas vykdomas elektroniniu būdu VĮ Registrų centro administruojamoje specialiojoje svetainėje www.evarzytynes.lt. Elektroninio aukciono dalyviais registruojami asmenys, sumokėję aukcionų dalyvių įmokas ir internetu pateikę aukcionų sąlygose nurodytus dokumentus. Daugiau informacijos apie parduodamą turtą, išsamios viešojo aukciono sąlygos, turto apžiūros, aukciono dalyvių registracijos bei aukciono vykdymo laikotarpiai, sutarčių projektai skelbiami https://www.jonava.lt/savivaldybe/veiklos-sritys/parduodamas-turtas/739.
Darbuotojas, atsakingas už informacijos teikimą – Turto ir aplinkos apsaugos skyriaus vyriausioji specialistė Sandra Mačiulienė, tel.: (8 349) 20040, el.paštas: sandra.maciuliene@jonava.lt.
Nuoroda į elektroninį aukcioną
Išsamios trečio pakartotinio aukciono sąlygos
Išsamios trečio pakartotinio aukciono sąlygos (neįvykęs)
Išsamios antro pakartotinio aukciono sąlygos (neįvykęs)
Išsamios pakartotinio aukciono sąlygos (neįvykęs)
Išsamios aukciono sąlygos (neįvykęs)
Kultūros paveldo departamento reikalavimai
Preliminari statinio pirkimo-pardavimo sutartis
















.jpg)
